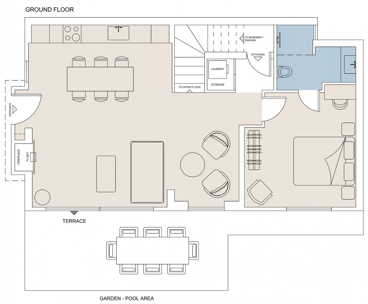
Unterkunft
3 geräumige Schlafzimmer, alle mit ensuite Badezimmer mit Dusche
Erdgeschoss Schlafzimmer: Doppelbett + Babybett auf Anfrage verfügbar
Obergeschoss Suite: Doppelbett + Babybett auf Anfrage verfügbar
Obergeschoss Schlafzimmer: Zwei Einzelbetten + ein Einzelsofa, das sich in ein Einzelbett verwandeln lässt. Die 2 Einzelbetten können auf Anfrage in ein Kingsize-Bett umgewandelt werden
Hinweis: Für große Unterkünfte mit bis zu 12+2 Personen können auf Anfrage zwei Villen miteinander verbunden werden











, +(30) 6936162267